








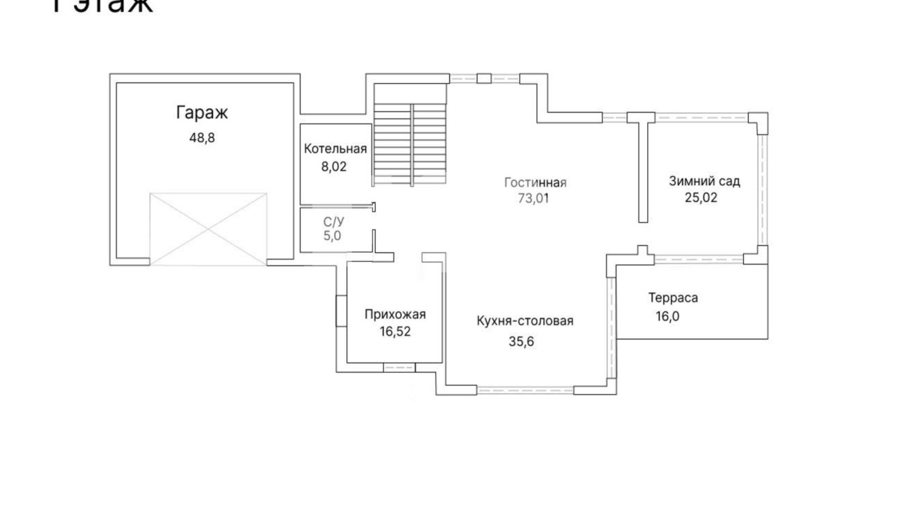
Великолепный двухэтажный дом площадью 360 кв.м., расположенный в одном из самых престижных коттеджных поселков бизнес-класса Новой Москвы. Дом построен из кирпича с дополнительным утеплением, что гарантирует превосходную тепло и звукоизоляцию. Престижный Фасад - внешняя отделка выполнена натуральным дагестанским песчаником, что придает строению монументальный, благородный и дорогой внешний вид. Мультипроектная разводка коммуникаций позволяет вам легко вносить корректировки в планировку внутренних перегородок и расположение розеток/сантехники без дорогостоящих переделок • Городские поселковые коммуникации заведены в дом, высокоскоростной интернет. Этот дом — идеальная “чистая основа” для реализации вашего эксклюзивного дизайн-проекта, где каждая деталь будет соответствовать только вашим требованиям