





Предлагаем дом в новом загородном проекте компании MR-групп ЖК Мыс
Срок сдачи 3 квартал 2028 года
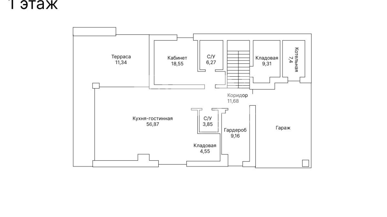
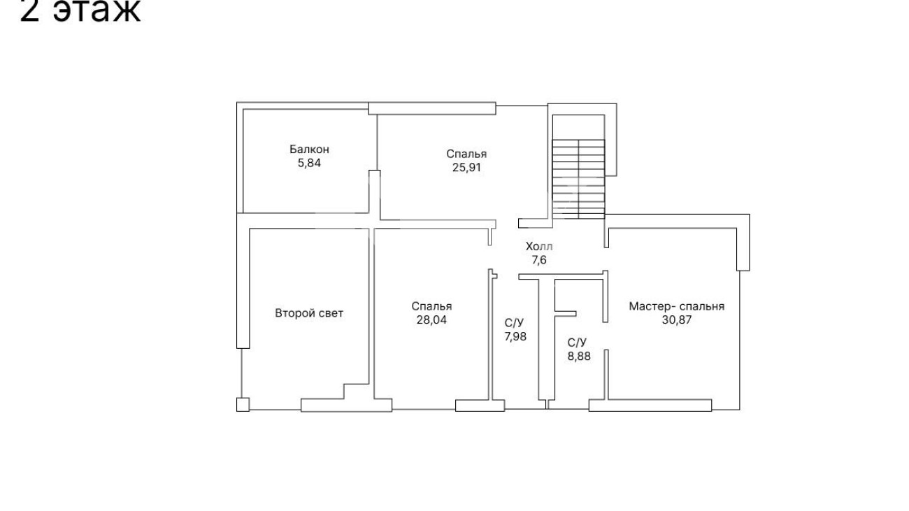
Натуральные материалы в отделке
• ЖК с зонированием на типы жилья: квартиры/таунхаусы/коттеджи
• Проект востребован на рынке – очень высокий процент реализации на старте продаж
• Удачная концепция, авторитет застройщика, локация, граничащая с премиальным поселком Трувиль позволяет предполагать высокую капитализацию проекта в перспективе
• Дворец спорта , парк и собственный пруд