


















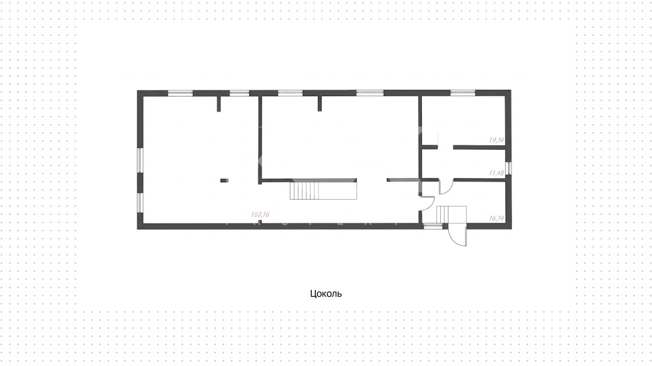
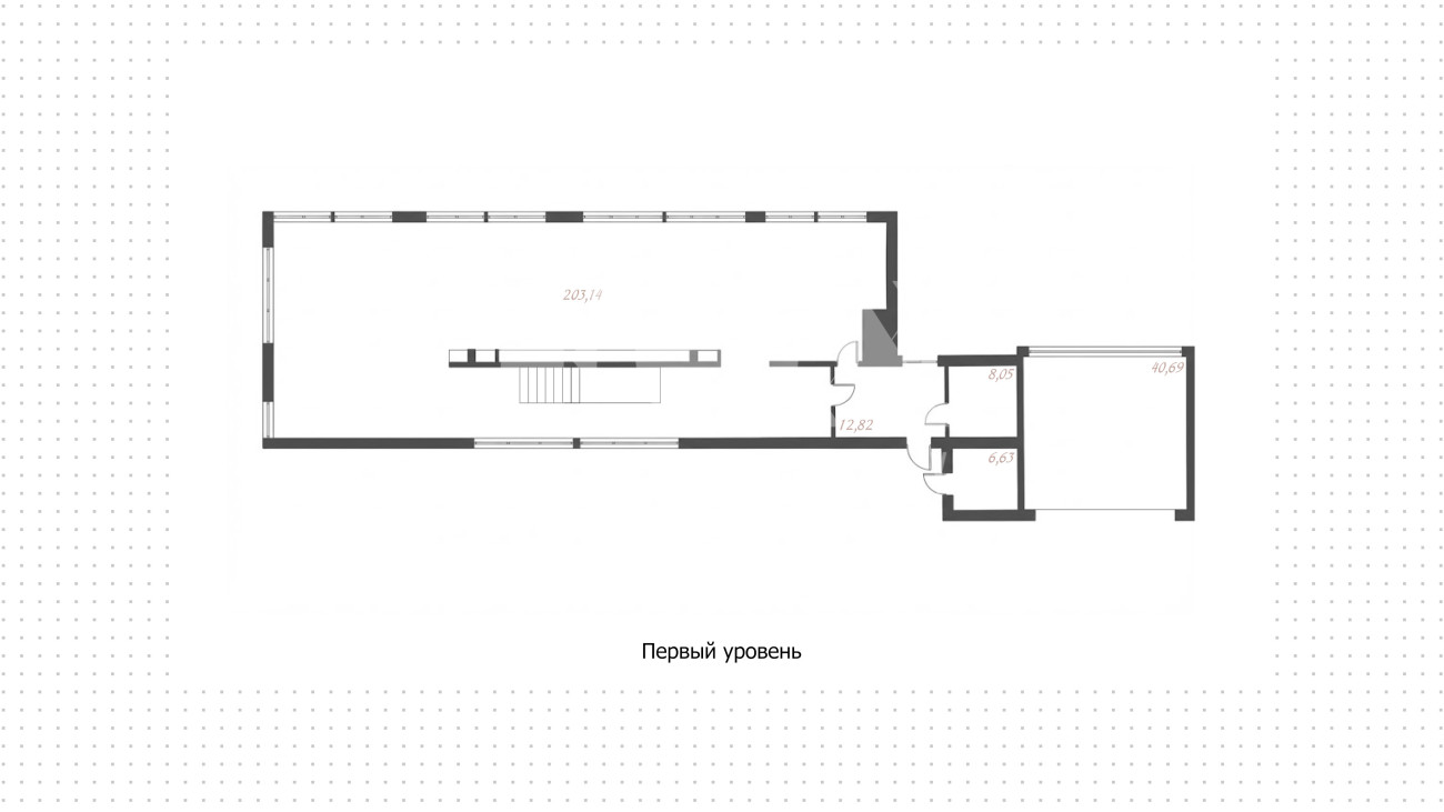
Загородный особняк площадью 1019 м² расположен на полевом участке 23 сотки.
Современный фасад с чёткими геометричными формами гармонично сочетает фактуры белоснежной штукатурки и дерева. Панорамные окна стирают грань между наполненными солнцем интерьерами и живописными видами на окружающую природу.
Отсутствие отделки предоставляет будущим владельцам полную свободу для воплощения авторского дизайн-проекта с возможностью выбора любого стиля, финишных покрытий, мебели и техники по своему вкусу. Пространство позволяет разместить здесь просторную гостиную, кухню-столовую с удобным островом и пять уютных спален. Для автомобилей предусмотрен встроенный гараж.
На участке с пышными елями открываются широкие возможности для ландшафтного творчества: можно засеять аккуратный газон, высадить декоративные кустарники, стройные туи и цветники, а также обустроить беседку с зоной барбекю для тёплых вечеров в кругу семьи и друзей.