












































































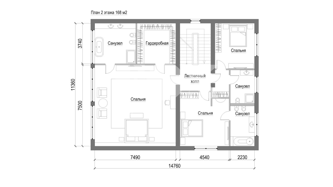
Предлагается 4-х уровневый коттедж общ.пл. 640 м2, кирпич, внешняя отделка лиственница, панорамное остекление. Участок 40 соток в новом коттеджном поселке из 4 домов. В поселке - круглосуточная охрана, домики для обслуживающего персонала, детская площадка, гостевая парковка на 20 авто. .