




Дом «Ситар» смотрит на прохожих большими окнами и сразу создает впечатление, что его хозяева — дружелюбные и гостеприимные люди. А стильный симметричный дизайн фасада с чуть углубленным, словно спрятанным входом, характеризует их как людей с хорошим вкусом и умением выбирать элегантные и функциональные решения одновременно.
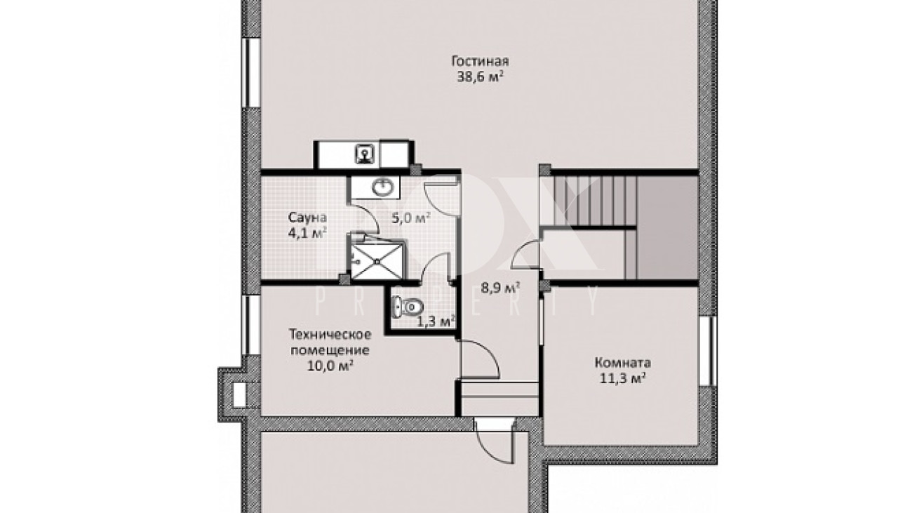
Дом действительно большой, поэтому можно забыть об ограничениях и реализовать все свои фантазии: обустроить музыкальную комнату, игровую, библиотеку или даже кинозал. Здесь также есть место под кабинет, если хозяину дома необходимо поработать или детям нужно отдельное помещение для занятий. И, конечно, в гостиной есть камин, у которого так приятно проводить время как летними, так и зимними вечерами.