





























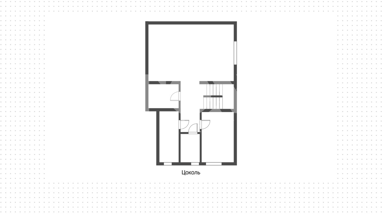
Современный дом площадью 350 кв.м на участке 10 соток. Предлагается с отделкой с white box, в т.ч. электрика, отопление, вентиляция с рекуперацией, канализация, водопровод. Все разведено согласно проекту, штукатурка всех стен и перегородок, ландшафтный дизайн.
Возможно завершение работ «под ключ».