
































Современный фахверк с банным комплексом в лесу.
Уютный фахверк для постоянного проживания в скандинавском стиле с большим панорамным остеклением на лесном благоустроенном участке 20 соток в 50 км от МКАД по Новорижскому шоссе (30 минут в пути) в коттеджном поселке Новолеоново.
Фишка проекта — полностью лесной участок на рельефе! Перепад высот достигает 5 м.
На участке расположен основной дом 147 кв.м, банный комплекс 150 кв.м из карельской сосны Кело и котельная-мастерская 33 кв.м, которую можно трансформировать в гостевой дом или помещение для обслуживающего персонала.
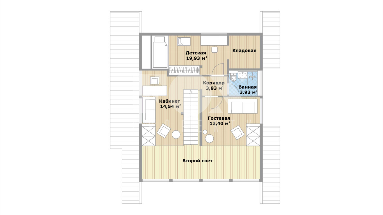
В доме: 3 спальни, гостиная со вторым светом, лаундж зона с островным камином, кухня-столовая, кабинет, постирочная.
В банном комплексе: русская печь с изразцами, на террасе - горячая встроенная фурако и холодная купель, столовая-гостиная, 12-футовый бильярд, гостевая спальня и шикарная парная комната с панорамным окном и живописным видом на участок.
Лесной благоустроенный участок 20 соток со множеством столетних деревьев и уникальным ландшафтом, вдохновленным природой Карелии. Создан благодаря многочисленным елям, соснам, кустарникам и огромным природным камням из самого сердца северной природы.
Во время строительства не только сохранили все деревья и кустарники, но и высадили почти 1000 единиц новых растений.
Рельеф пологий, но значительный - перепад высот достигает 5 м. Узкие тропинки ведут к плодовым кустам, среди которых яблони, смородина и другие растения. Многоуровневый лес вокруг дома. Мягкое ландшафтное освещение, создающее уютную атмосферу в любое время суток.
ОСНОВНОЙ ДОМ
Каменный шпон фасада и лиственничная кровля придают дому оригинальный стиль. Внутри — светлые, просторные пространства в стиле скандинавского минимализма: много стекла, деревянный шпон и декоративный бетон. Потолки, выполненные из лиственницы, словно продолжают природную эстетику дома.
Теплые полы на обоих этажах, системы вентиляции и современные кондиционеры гарантируют комфорт в любое время года.
Банный комплекс.
Роскошный банный комплекс из карельской сосны Кело диаметром 300 мм с камином, баром, кухней и русским бильярдом.
- Комната отдыха, спальня, сауна, душевая, с/у, терраса, крыльцо .
Печь в парной, топка-камин в гостевой и мангальная зона выложены изразцами по индивидуальному проекту в кельтском стиле.
Горячая купель на дровах фурако, встроенная в террасу из лиственницы: не надо прыгать по ступеням, а сразу садишься в комфортабельный чан с гидро- и аквамассажем. Рядом установлена холодная купель.
В парной установлено большое панорамное окно 1,7*2,4 м с подогревом (предотвращает запотевание).
В душевой два обливных ведра по 30 л - дают равномерное контрастное охлаждение в течение 8 секунд, в отличие от ведер, которые не обеспечивают равномерного и плотного обливания.
Весь текстиль: занавески, шторы и даже покрывало для бильярдного стола – сшиты по индивидуальному заказу в славянском стиле, в технике пэчворк (лоскутами) с инкрустацией. Банное пространство украшено масштабными композициями из сухоцветов.
МАТЕРИАЛЫ И БРЕНДЫ
Межкомнатные двери Union
Мебель Boca Room, Art Fabric, Lavsit, Ru-Sky
Сантехника Villeroy&Boch
Стиральная машина Samsung
Сушильная машина Haier
Сушильный шкаф Аsko
В бане бытовая техника BORK
ИНЖЕНЕРИЯ И КОММУНИКАЦИИ
Магистральный газ
Электричество 12 кВт
Центральное водоснабжение
Центральная канализация
Высокоскоростной интернет
Приточно-вытяжная вентиляция
Теплые полы в доме и в бане