




















































Уникальная резиденция, где каждая деталь подчинена гармонии. Уединенное положение, равноудаленное от Рублево-Успенского и Ильинского шоссе, создает ощущение приватного мира, где вековые дубы шепчут истории прошлого, а современный комфорт встречается с вечной красотой природы.
Дополнительным преимуществом локации является прогулочная зона вдоль Москва-реки — набережная Жуковки 21. При этом все необходимое — от «Азбуки Вкуса» до ресторанов и банков — находится в пешей доступности, всего в 10 минутах от дома на Жуковской площади.
На участке площадью 5 162 м2 создана гармоничная ландшафтная композиция: реликтовые дубы соседствуют с аккуратными газонами для мини-гольфа, сформированный сад дарит разнообразие ароматов, а продуманное зонирование создает идеальный баланс между частной жизнью и приемом гостей. Песчаные почвы обеспечивают естественный дренаж, сохраняя территорию безупречной в любую погоду.
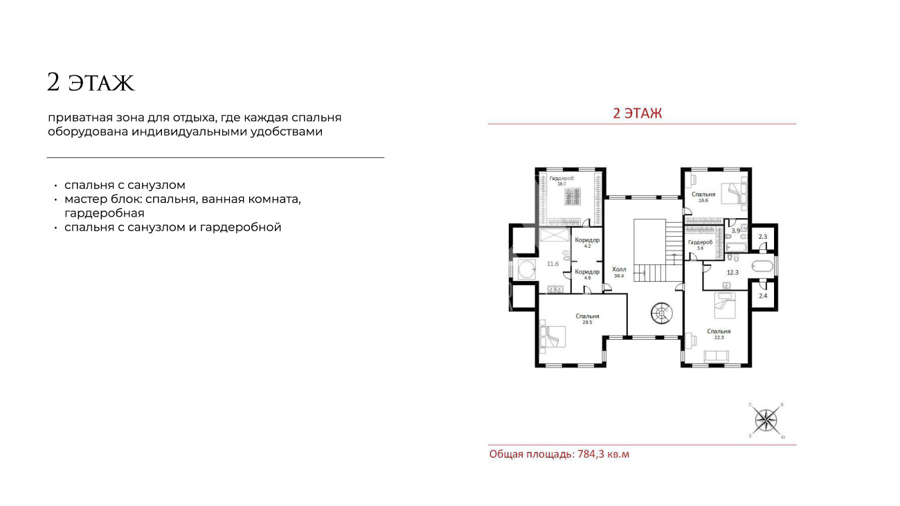
Внутренняя планировка воплощает принципы палладианской симметрии: на первом этаже общественные зоны плавно перетекают друг в друга, создавая единое пространство для жизни и приема гостей. Второй этаж предлагает уединение в трех спальнях с индивидуальными гардеробными и санузлами, а цокольный уровень открывает мир релаксации с бассейном, SPA-комплексом и кинозалом.
Мансарда с просторной детской зоной завершает эту совершенную композицию.
Интерьеры, созданные под руководством архитектора Екатерины Григорьевой, несут в себе философию Джона Саладино. Основой концепции стала его философия «хода времени», воплощенная в интерьере через включение антикварных предметов и искусства, которые, подобно живой ткани, связывают прошлое с настоящим.
Минеральная колористика стен, антикварные люстры из Парижа, мебель Arthur Brett и Mark Wilkinson — каждая деталь становится частью повествования о вечности и прекрасном. Ощущение непрерывного течения времени проявляется в диалоге между историческими артефактами и современными элементами, создавая живой, дышащий интерьер.
Дополнительные строения образуют завершенную инфраструктуру: павильон для приемов с террасой, винный погреб с дегустационной зоной, дом для персонала, помещение охраны, домик садовника у оранжереи и теплый гараж на 2 м/м создают идеальную среду для жизни, где природа и архитектура существуют в неразрывном единстве.